71 schémas hydrauliques trouvés
⋯

flexoCOMPACT exclusive
Pompe à chaleur Eau / Eau
Ballon ECS intégré, Ballon tampon rafraîchissement
multiMATIC 700, VR 71, VR 91, VR 920
VWF 58/4;VWF 88/4;VWF 118/4
- Plancher chauffant: 2x Mélangé
- Circuit de fonctionnement: 1x Piscine

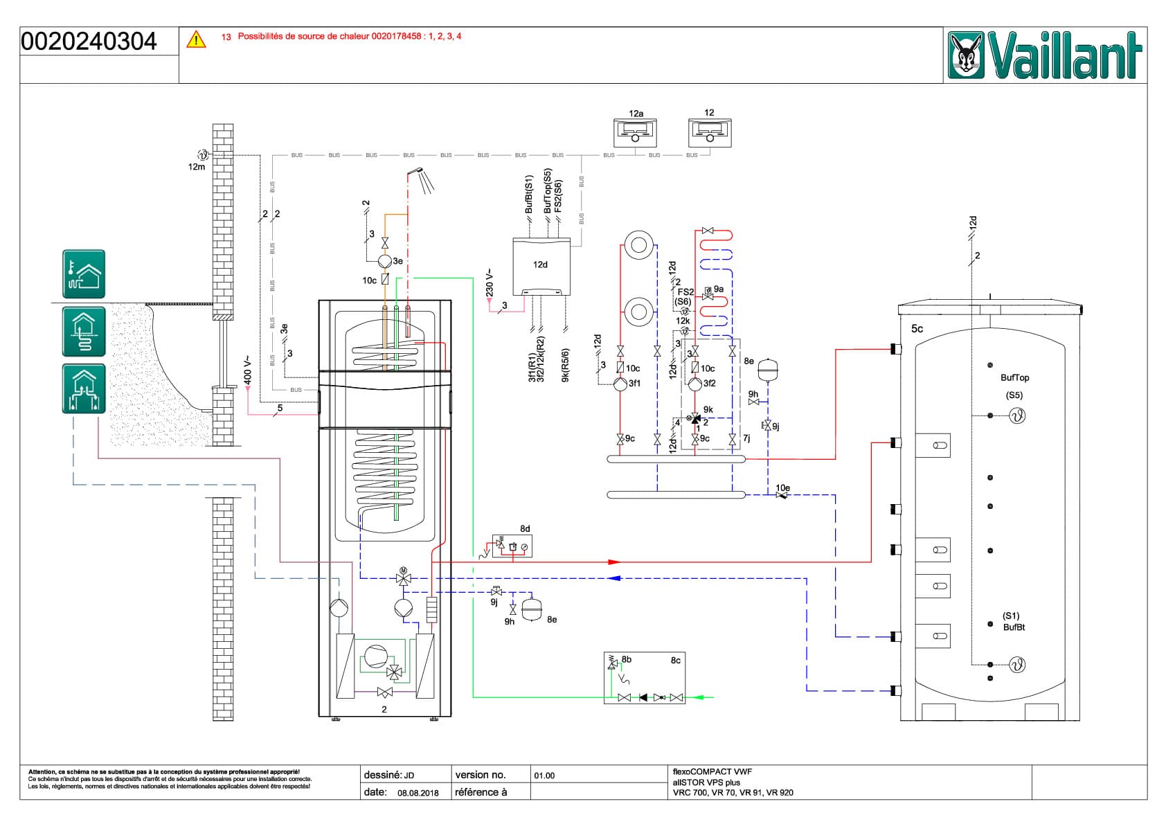
flexoCOMPACT exclusive
Pompe à chaleur Eau / Eau
Ballon tampon, Ballon ECS, Ballon ECS intégré
VR 70, VRC 720, VR 921
VWF 58/4;VWF 88/4;VWF 118/4
- Plancher chauffant: 1x Direct

flexoCOMPACT exclusive
Pompe à chaleur Eau / Eau
Ballon ECS intégré, Ballon tampon, Ballon ECS
multiMATIC 700, VR 70, VR 91, VR 920
VWF 58/4;VWF 88/4;VWF 118/4
- Radiateur: 1x Mélangé
- Plancher chauffant: 1x Direct

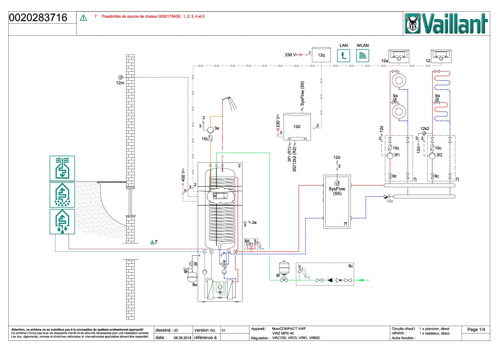
flexoCOMPACT exclusive
Pompe à chaleur Eau / Eau
Ballon ECS intégré, Ballon tampon
multiMATIC 700, VR 70, VR 91
VWF 58/4;VWF 88/4;VWF 118/4
- Radiateur: 1x Direct
- Plancher chauffant: 1x Mélangé

flexoCOMPACT exclusive
Pompe à chaleur Eau / Eau
Ballon tampon, Ballon ECS intégré
multiMATIC 700, VR 91, VR 71
VWF 58/4;VWF 88/4;VWF 118/4
- Plancher chauffant: 3x Mélangé
⋯