294 schémas hydrauliques trouvés
⋯

ecoCOMPACT
Chaudière au sol à condensation
Ballon ECS intégré
VRC 720, VR 71, VR 92, VR 921
VSC 206/4-5 90;VSC 266/4-5 90;VSC 266/4-5 150;VSC 306/4-5 150
- Radiateur: 1x Direct
- Plancher chauffant: 1x Mélangé

ecoCOMPACT
Chaudière au sol à condensation
Ballon ECS intégré
VRC 720, VR 71, VR 92, VR 921
VSC 206/4-5 90;VSC 266/4-5 90;VSC 266/4-5 150;VSC 306/4-5 150
- Radiateur: 1x Direct
- Plancher chauffant: 2x Mélangé

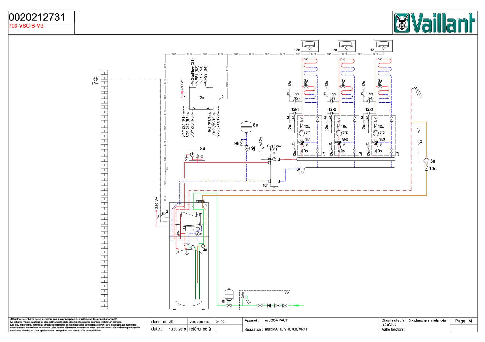
ecoCOMPACT
Chaudière au sol à condensation
Ballon ECS intégré
multiMATIC 700, VR 71, VR 91
VSC 206/4-5 90;VSC 266/4-5 90;VSC 266/4-5 150;VSC 306/4-5 150
- Plancher chauffant: 3x Mélangé

ecoCOMPACT
Chaudière au sol à condensation
Ballon ECS intégré
multiMATIC 700, VR 70, VR 91
VSC 206/4-5 90;VSC 266/4-5 90;VSC 266/4-5 150;VSC 306/4-5 150
- Plancher chauffant: 2x Mélangé

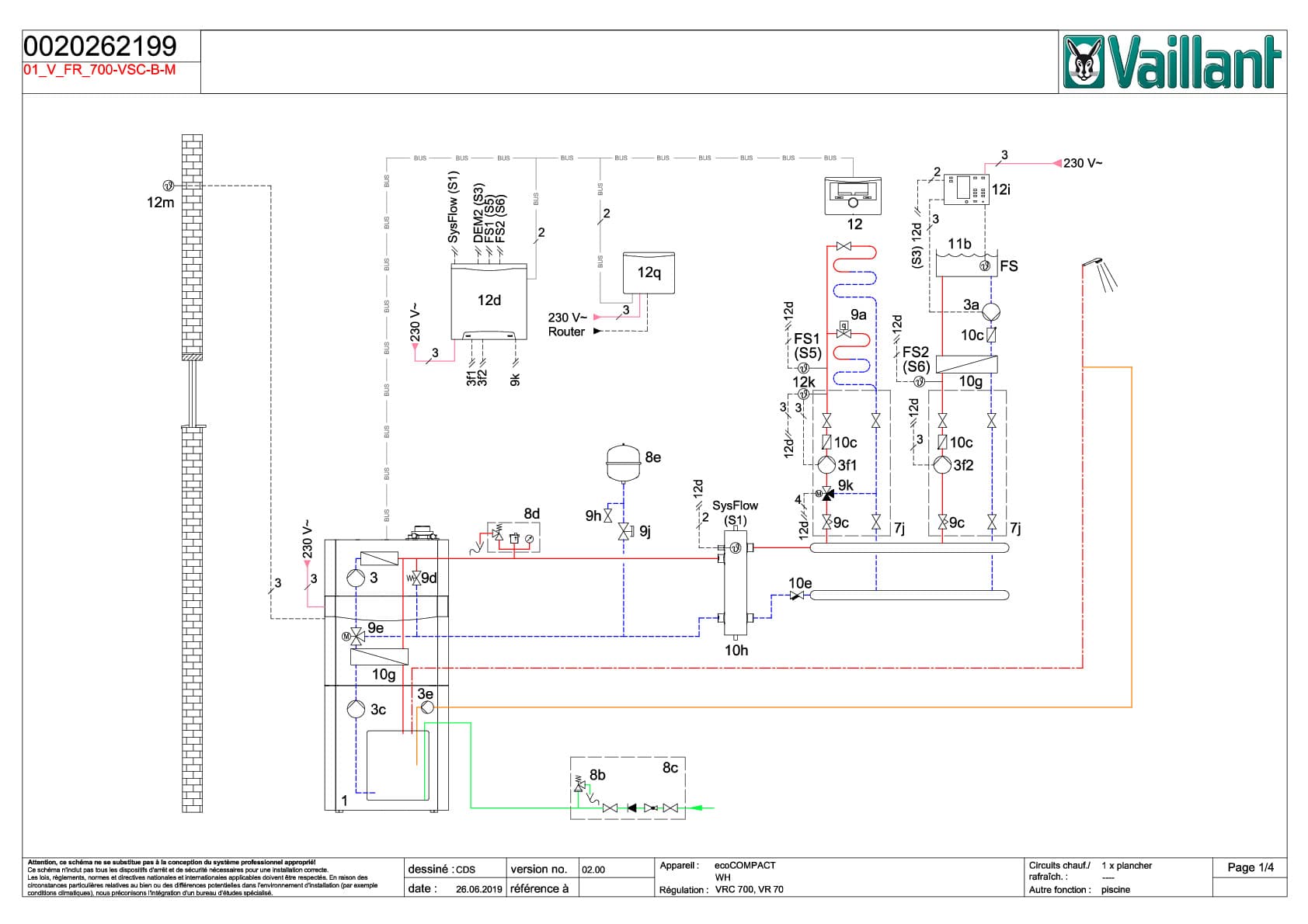
ecoCOMPACT
Chaudière au sol à condensation
Ballon ECS intégré
multiMATIC 700, VR 70
VSC 206/4-5 90;VSC 266/4-5 90;VSC 266/4-5 150;VSC 306/4-5 150
- Plancher chauffant: 1x Mélangé
- Circuit de fonctionnement: 1x Piscine
⋯